BẠN ĐANG TÌM KIẾM GÌ?
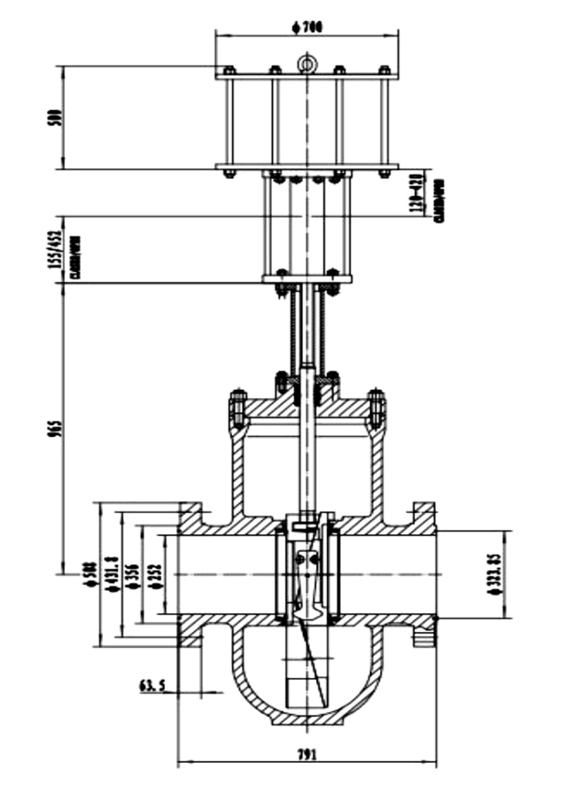
Để đáp ứng các yêu cầu cụ thể của khách hàng, GEKO Valves & Controls đã thiết kế và cung cấp thành công một giải pháp phù hợp - 10" Van điều khiển hai cửa dành cho đường ống vận chuyển thô. Giải pháp van tùy chỉnh này đã nhận được sự công nhận và chấp thuận rộng rãi từ khách hàng thân thiết của chúng tôi.

Kỹ thuật chính xác: GEKO đã tận dụng chuyên môn sâu rộng của mình để chế tạo 10" Van điều khiển hai cửa với độ chính xác, đảm bảo khả năng kiểm soát và hiệu suất tối ưu trong bối cảnh vận chuyển dầu thô.
Thiết kế cửa kép: Việc tích hợp thiết kế cửa kép giúp tăng cường khả năng điều chỉnh lưu lượng dầu thô hiệu quả của van. Tính năng này mang lại khả năng kiểm soát và phản ứng tốt hơn với những biến động trong quá trình vận chuyển.
Lựa chọn vật liệu: Cam kết về chất lượng của GEKO được thể hiện qua việc lựa chọn vật liệu cẩn thận, đảm bảo độ bền và độ tin cậy trong môi trường vận chuyển dầu thô đầy thách thức.
10" tùy chỉnh Van điều khiển hai cửa đã trải qua quá trình thử nghiệm và đánh giá nghiêm ngặt, và khách hàng đã bày tỏ sự hài lòng hoàn toàn với giải pháp. Các van đã chứng minh hiệu suất vượt trội trong việc điều tiết dòng chảy của dầu thô qua đường ống vận chuyển.
Lưu lượng dầu thô được tối ưu hóa: Giải pháp được thiết kế riêng đảm bảo quy trình vận chuyển dầu thô của khách hàng được tối ưu hóa, với khả năng kiểm soát chính xác lưu lượng dầu thô, góp phần nâng cao hiệu quả hoạt động.
Hiệu suất đáng tin cậy: Cam kết của GEKO về kỹ thuật chính xác và vật liệu chất lượng cao mang lại hiệu suất van đáng tin cậy và nhất quán, giảm thiểu thời gian ngừng hoạt động và yêu cầu bảo trì.
Kiểm soát nâng cao: Thiết kế cửa đôi của van cung cấp cho khách hàng khả năng kiểm soát nâng cao, cho phép quản lý tốt hơn quá trình vận chuyển dầu thô.
Van và điều khiển GEKO Thành công trong việc cung cấp giải pháp tùy chỉnh cho Van điều khiển cửa đôi 10 inch nhấn mạnh sự tận tâm của chúng tôi trong việc đáp ứng và vượt quá mong đợi của khách hàng. Sự chấp thuận từ khách hàng khẳng định hiệu quả của phương pháp tiếp cận được thiết kế riêng của chúng tôi, thể hiện GEKO là đối tác đáng tin cậy cho các giải pháp van chuyên dụng trong những lĩnh vực đầy thách thức. lĩnh vực vận chuyển dầu thô. Liên hệ với chúng tôi: info@geko-union.com